2020年6月、下北沢に全く新しいタイプのコワーキングスペース「いいオフィス下北沢」がオープンします。
「いいオフィス下北沢」は、レンタルオフィスやレンタルスペース運営の株式会社ヒトカラメディア、投資不動産ソリューションを提供する株式会社エー・ディー・ワークス、コワーキングスペース事業を運営する株式会社いいオフィスの3社共同のプロジェクトで、【クリエイティブをシェアする】をコンセプトにしたコワーキングスペースです。


■ 目指すのは、「クリエイティブをシェアする」が体現される場所
「いいオフィス下北沢」は、クリエイターに特化したコワーキングスペースです。入居者のアウトプット作品を飾るディスプレイがどんどん埋まっていったり、クリエイター同士による共同制作の作品が生まれたり。これまでにない、ユニークな化学反応が次々と起こっていくようなコミュニティづくりのサポートを行うとのこと。

■そして、クリエイターも立ち上げメンバーの一員!今までにない共創型プロジェクトに挑戦
住んでいる、働いている以外にも、とにかくこの街が好きだというクリエイターが多く存在する下北沢。本プロジェクトは、そんな下北沢にゆかりのあるクリエイターをメンバーに迎え、一体となって進めます。プロジェクトメンバーには、複数回のワークショップへの参加、そしてオープン前の約2週間にわたる創作期間の過程も一緒に担います。ワークショップを通じてオープンまでの過程にある思考・時間も含んだ「クリエイティブ」をシェアし、彼らのニーズとアイデアを空間に入れ込むことで、入居者をはじめとする場に関わる人々の創作活動をより後押しするとのこと。

そんな「いいオフィス下北沢」、参加クリエイターの募集は3月29日までで、4月2日・23日の2日間(19:00-22:00)でワークショップを実施、5月18日~31日の期間でワークショップで集めた案を参加者全員で実現するとのこと。プレオープンは6月1日~14日、そして6月15日(月)10時に本オープンの予定です。
クリエイターの募集は、非公開のFacebookグループ「いいオフィス下北沢プロジェクトメンバーグループ」で実施(審査あり、最大30名まで)。下北沢に思い入れがあるクリエイター(モノづくり、コトづくりに関わる方、ジャンルは問いません)を広く募集しています。
また、プロジェクトには参加できないけど興味がある皆様向けに「いいオフィス下北沢Facebookページ」もあるので、気になる方は要チェックです。




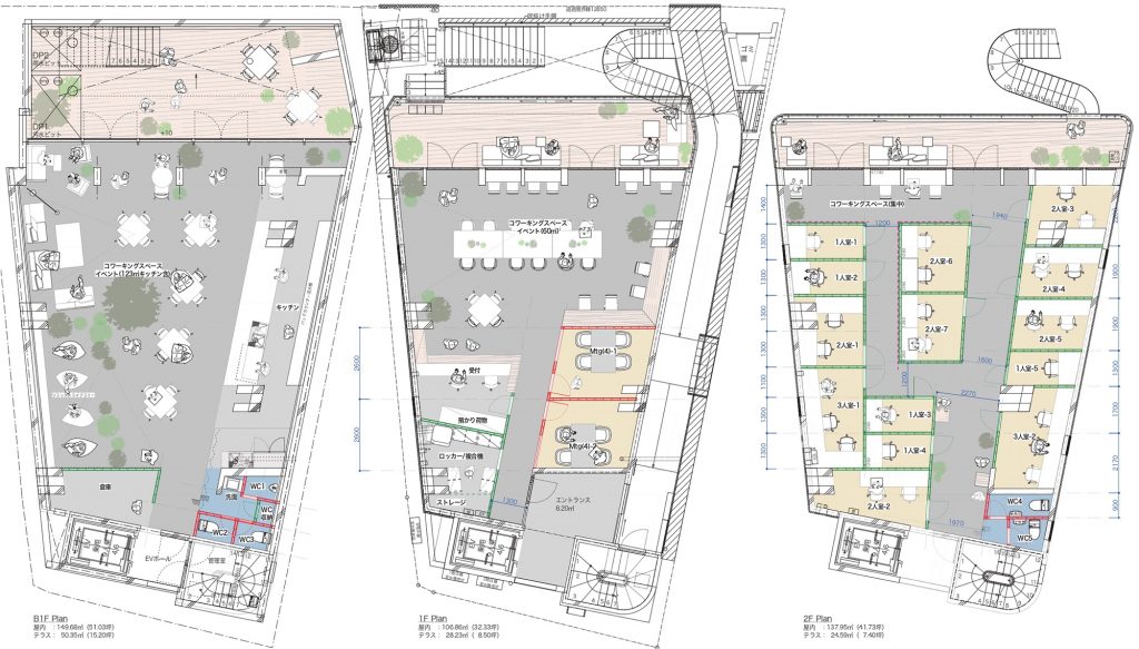
「いいオフィス下北沢」は北沢2-27-9、北側の鎌倉通り近くに新しくできたビルの地下1階から2階に入居。スタイリッシュでかなり広い物件なのでどんなお店が入るのかと思っていましたが、まさかコワーキングスペースになるとは。会議室やシェアオフィス、交流できるキッチン、そしてイベントスペースも設けられるとのことですが、かなり大規模な施設になりますね。
どのようなクリエイターが集まり、魅力的なスペースが生まれるのかとても興味があります。最新情報が分かりましたら、しもブロでもアップデートする予定です。

「いいオフィス下北沢」施設概要
OPEN予定日 :2020年6月15日
所在地 :東京都世田谷区北沢2丁目27-9
対象フロア :B1~2F
坪数 :B1(専有面積45.28坪/テラス面積15.23坪)
1F(専有面積32.3坪/テラス面積8.54坪)
2F(専有面積41.73坪/テラス面積7.44坪)
用途イメージ:コワーキングスペース、レンタルオフィス、
イベント・ポップアップスペース
